Findlay Park
Dartmouth
00 Buchanan Drive, Mercersburg, PA, 17236
by S&A Homes
From $434,900 This is the starting price for this plan and is subject to change.
- 4 Beds
- 2.5 Baths
- 2 Car garage
- 2,243 Sq Ft
Overview
Floor plan features
- 1 Half Bathroom
- 2 Stories
- Basement
- Breakfast Area
- Dining Room
- Family Room
- Green Construction
- Single Family
- Walk-In Closets
Floor plan description
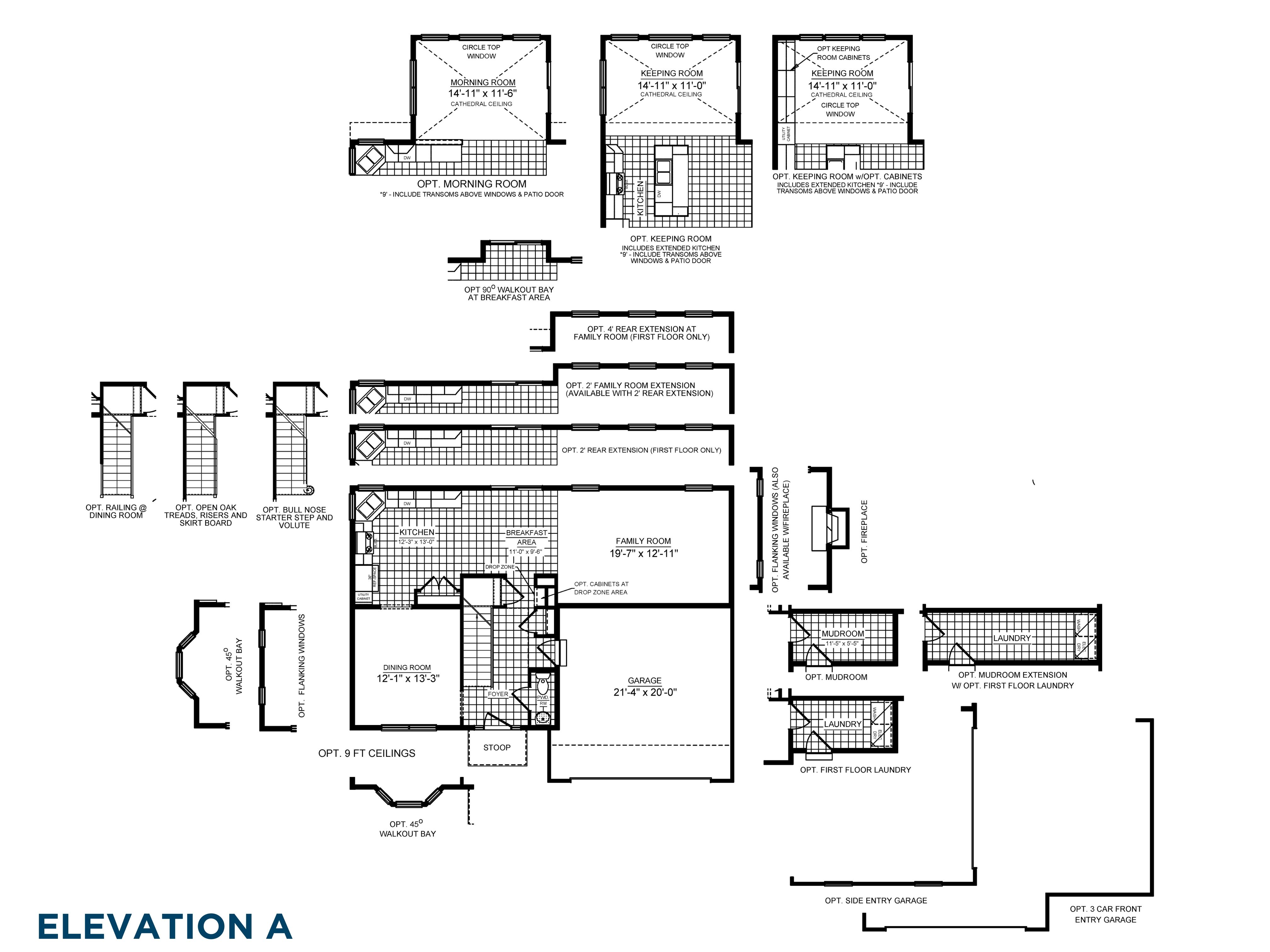
The Dartmouth is a generously appointed 4-bedroom home that packs thoughtful details into each room, making it the ultimate floorplan for those seeking a gourmet kitchen, large walk-in closets and an open-concept layout without adding wasted square footage.An impressive foyer opens into the homes formal dining area which comfortably accommodates a large table and chairs, but can also be converted into a home office or formal living room for those seeking a different option. In the back of the Dartmouth, a large open-concept kitchen and family room offers plenty of space for entertaining family and friends. Family-friendly features are included such as a built-in utility closet that is perfect for household cleaning supplies, a built-in pantry, and a drop zone area designed to store backpac...
Explore this home
Explore custom options for this floor plan.
Community highlights
About Findlay Park
Move-in Ready Homes Available!Looking to build your dream home in Mercersburg, PA? Findlay Park offers spacious homesites in an established neighborhood just one mile from local shops, dining, schools, and historic downtown Mercersburg. Enjoy peaceful living with modern conveniences close to home.Mercersburg is the birthplace of President James Buchanan and boasts a nationally recognized historic district. The town is home to Mercersburg Academy, a prestigious college preparatory school, and hosts charming local shops, restaurants, and seasonal events. Outdoor recreation opportunities, such as Whitetail Resort, Cowans Gap State Park, and Buchanan State Forest, are just minutes away. Conveniently located near Routes 16, 75, and I-81, Findlay Park is just 15 minutes from Greencastle, 25 minu...
Neighborhood
Community location
00 Buchanan Drive Mercersburg, PA 17236
300 Amberleigh Lane Shippensburg, PA 17257
888-928-3831
From Mercersburg - follow Route 18 - Buchanan Trail West for .4 mile.Turn right onto Fort Loudon Road.Turn Left onto Black Road.Turn Right onto Buchanan Drive.
Amenities
Community & neighborhood
Builder details
S&A Homes

After building more than 15,000 homes, Bob Poole, CEO of S&A Homes, is the first to acknowledge that his down-to-earth approach hasn’t shifted since day one. Since taking ownership of the company in 1980, Bob has instilled the belief that we build each home as if it’s the only home we are building. Our customer focus is the backbone behind S&A’s transformation from a local, custom home-builder started in 1968 to the award-winning regional builder we are today.
Take the next steps toward your new home
This listing's information was verified with the builder for accuracy 23 hours ago
Dartmouth Plan by S&A Homes
saved to favorites!
To see all the homes you’ve saved, visit the My Favorites section of your account.
Discover More Great Communities
Select additional listings for more information
We're preparing your brochure
You're now connected with S&A Homes. We'll send you more info soon.
The brochure will download automatically when ready.
Brochure downloaded successfully
Your brochure has been saved. You're now connected with S&A Homes, and we've emailed you a copy for your convenience.
The brochure will download automatically when ready.
Way to Go!
You’re connected with S&A Homes.
The best way to find out more is to visit the community yourself!